EN
+357-96-666-506
Ежедневно с 9:00 до 18:30

Santa Elena

Кипр, Фамагуста, Айя Триада
Показать на карте
section hero slider slide background
section hero slider slide background
section hero slider slide background
section hero slider slide background
section hero slider slide background
section hero slider slide background
section hero slider slide background
section hero slider slide background
section hero slider slide background
section hero slider slide background
section hero slider slide background
section hero slider slide background
section hero slider slide background
section hero slider slide background
section hero slider slide background
icon
До моря 6 минут
icon
До школы 7 минут
icon
До магазина 3 минуты
icon
До больницы 13 минут
от €625 000
Назначение
Продажа
Город
Фамагуста
Район
Айя Триада
Доступных лотов
17 из 20
Площадь
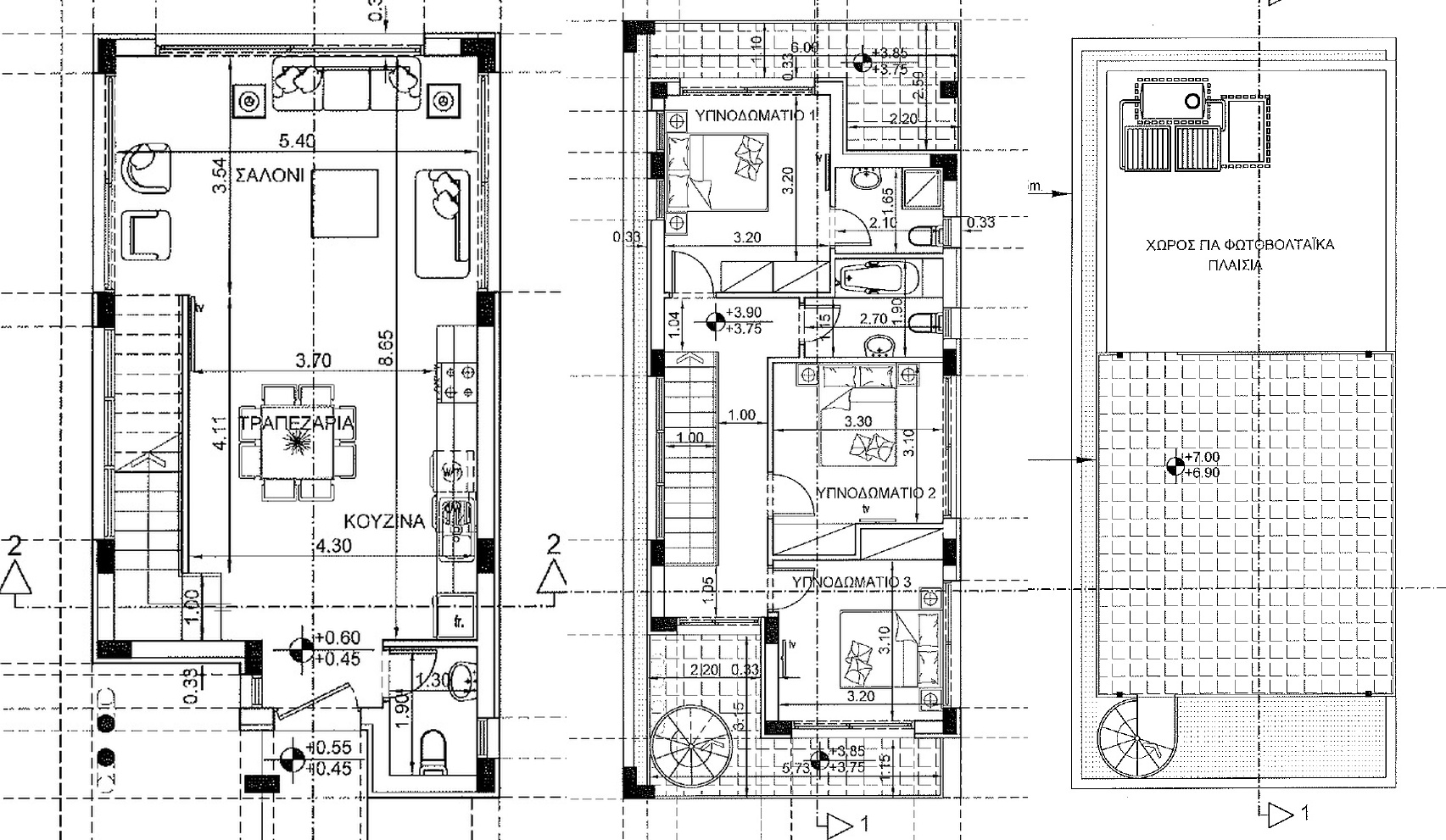
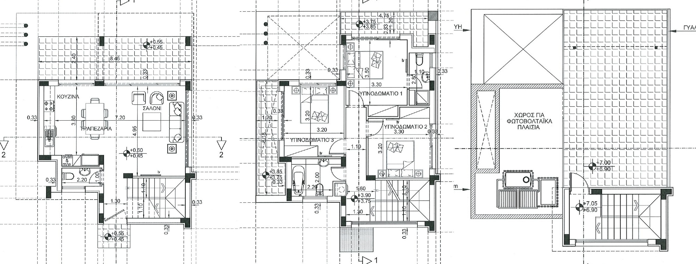
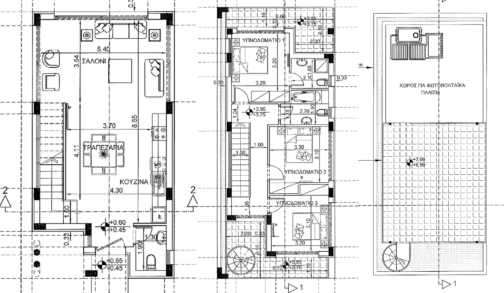
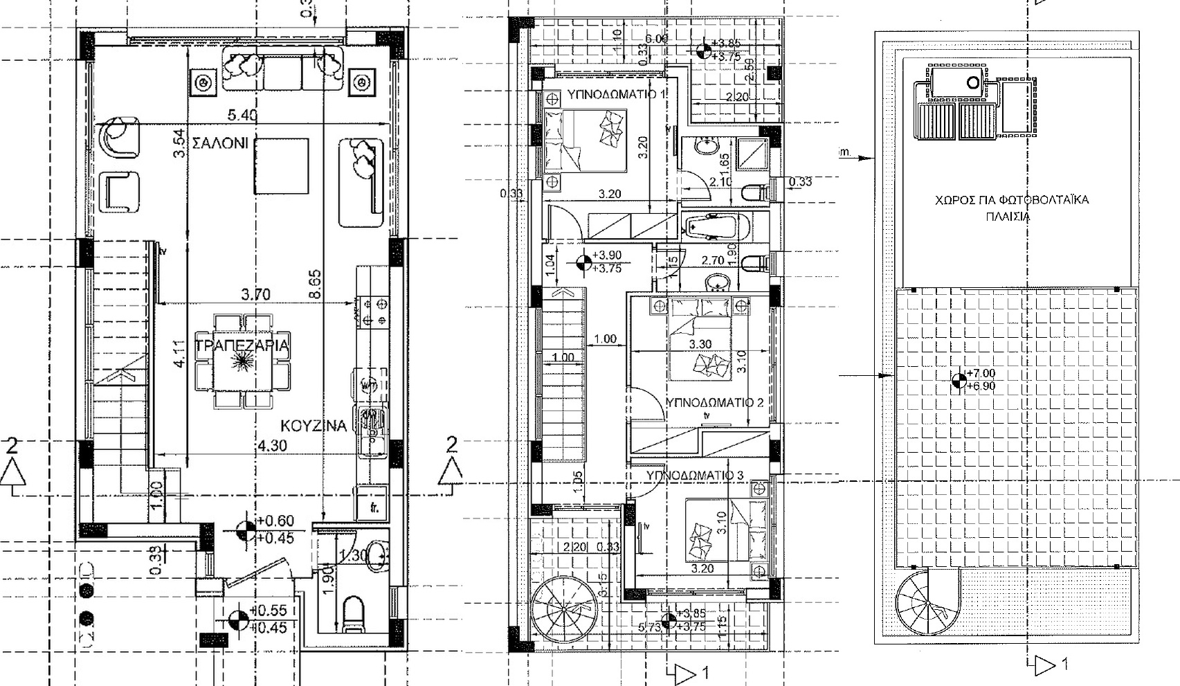
130-132 м2
Этажность
2
Скачать предложение
Характеристики
feature icon
Площадь
130-132 м2
feature icon
Тип недвижимости
Жилая недвижимость
feature icon
Год строительства
2027
feature icon
Тип объекта
Виллы
feature icon
Статус
В стадии строительства
feature icon
Вид
Город

Роскошные виллы в шаговой доступности от моря. Резиденции спроектированы с акцентом на приватность. Каждая вилла располагает собственным бассейном и садом на крыше с потрясающим видом на море. Поблизости – новая роскошная марина Паралимни, которая станет центром притяжения туристов.

Приватный бассейн в каждой вилле
сад на крыше
500 метров до пляжа

Доступные лоты

По цене - возрастание
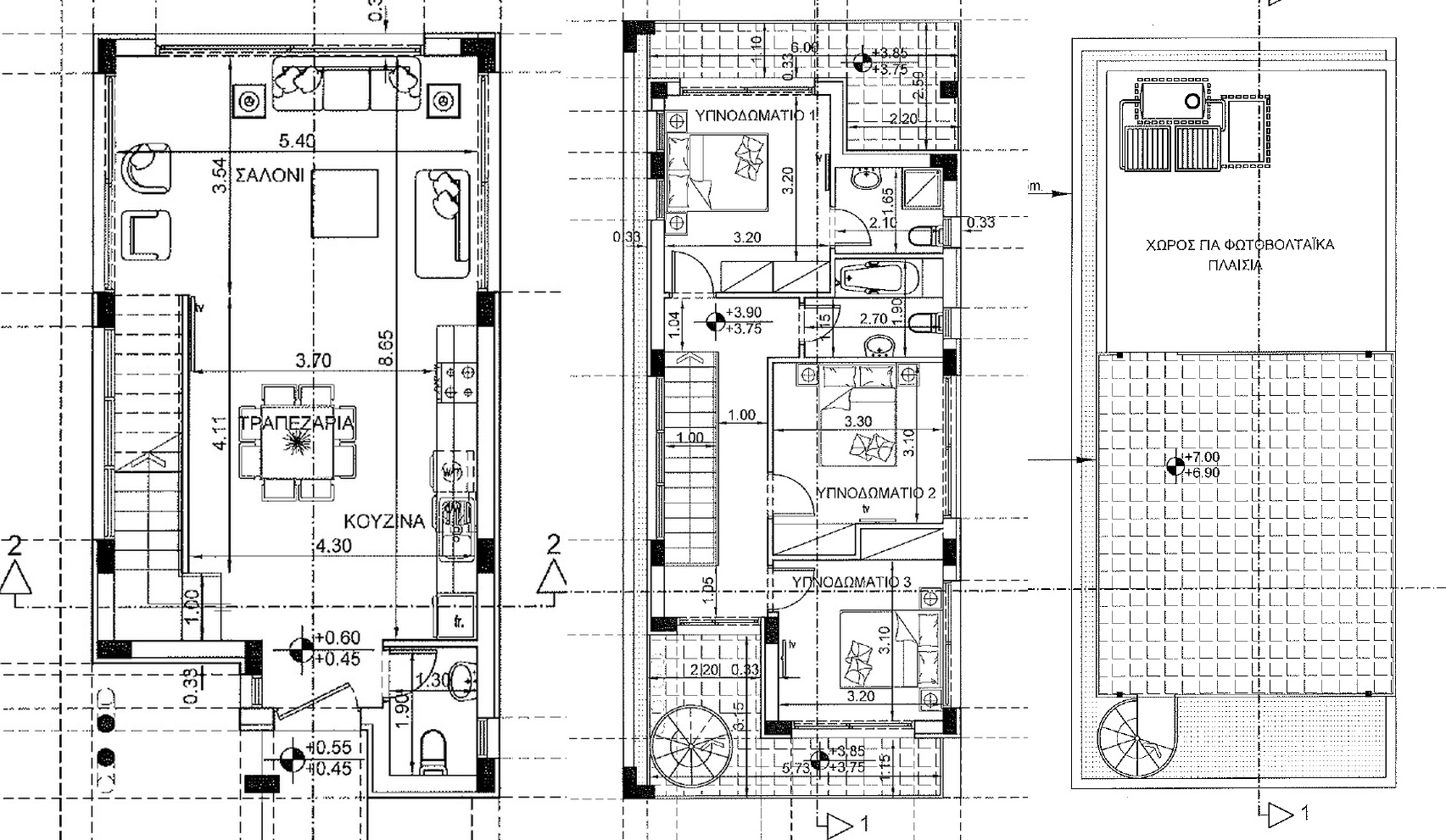
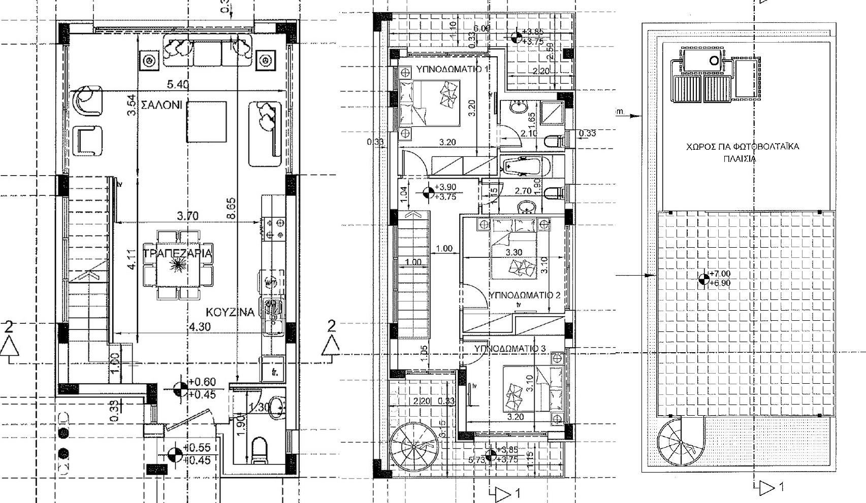
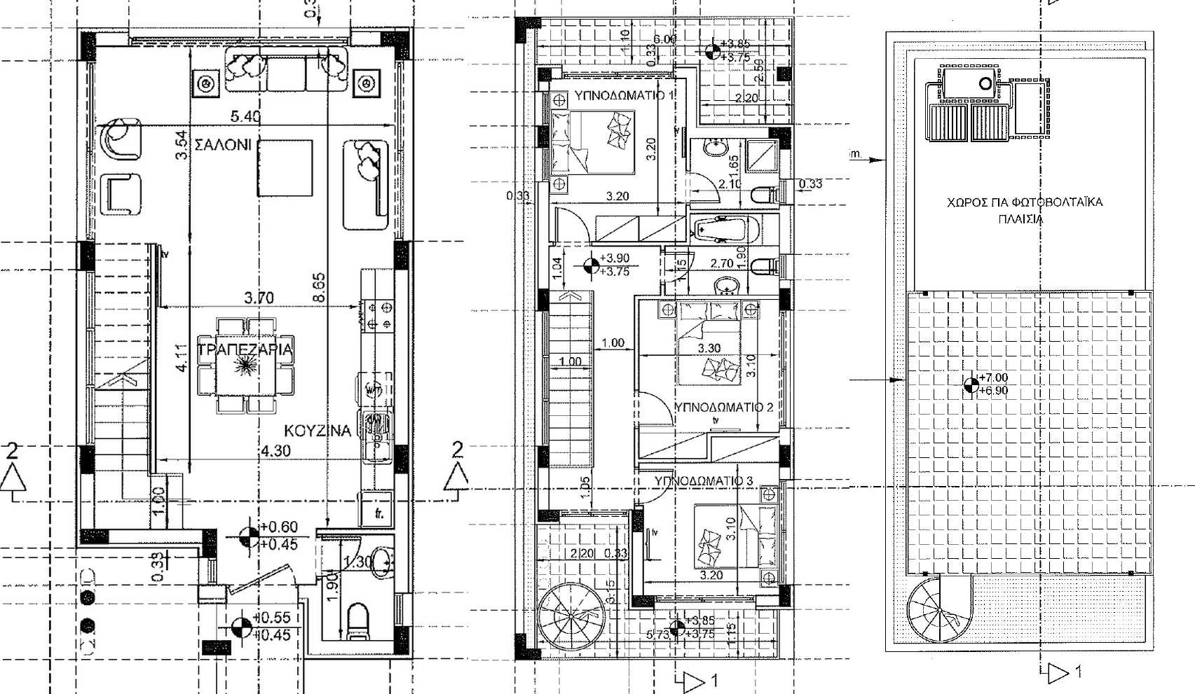
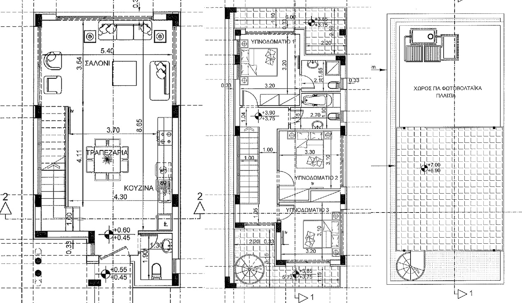
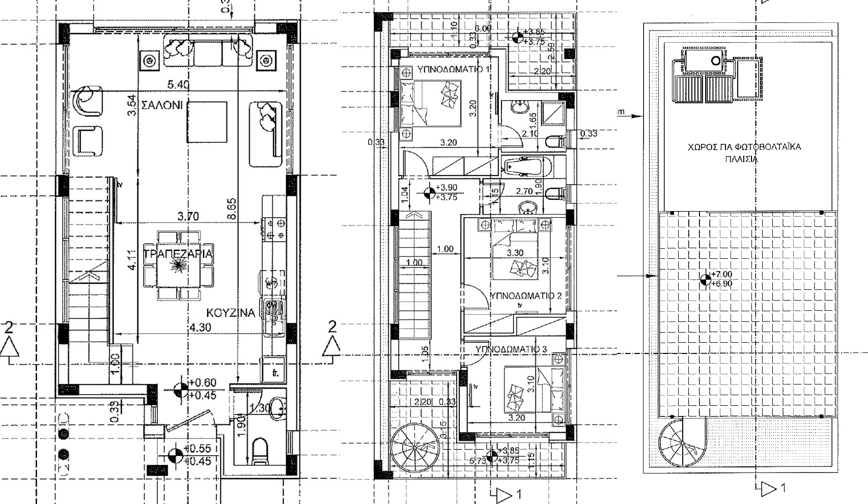
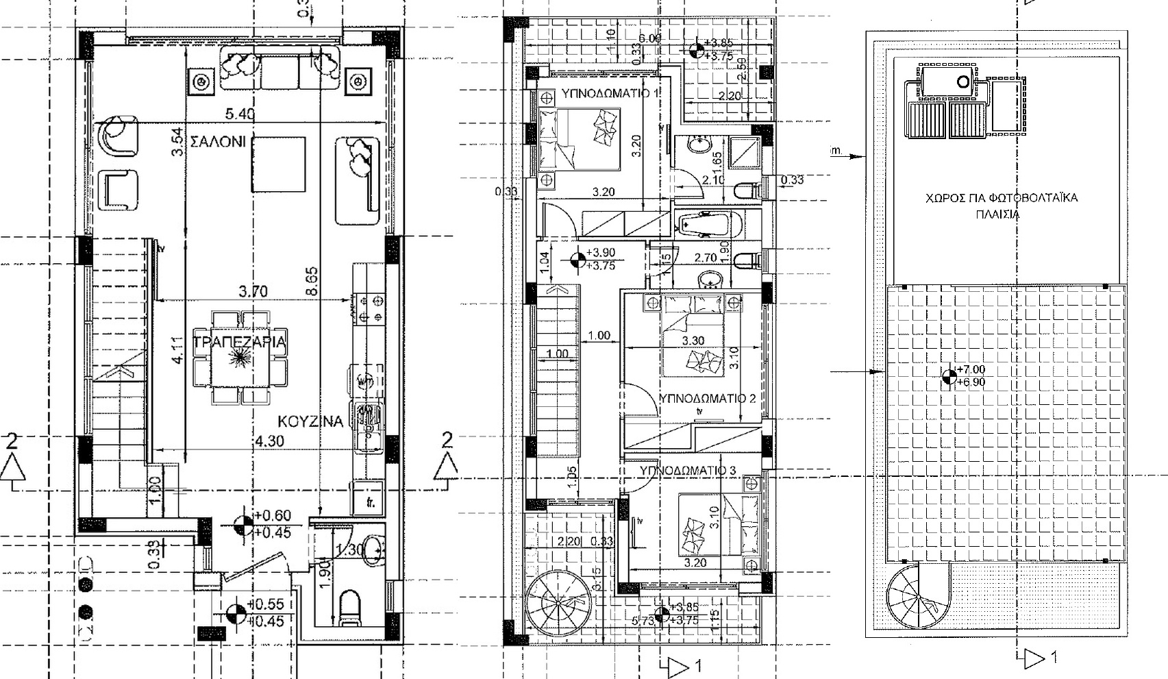
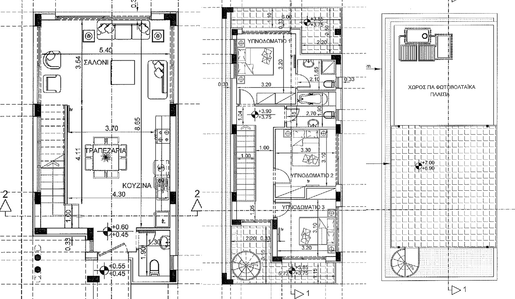
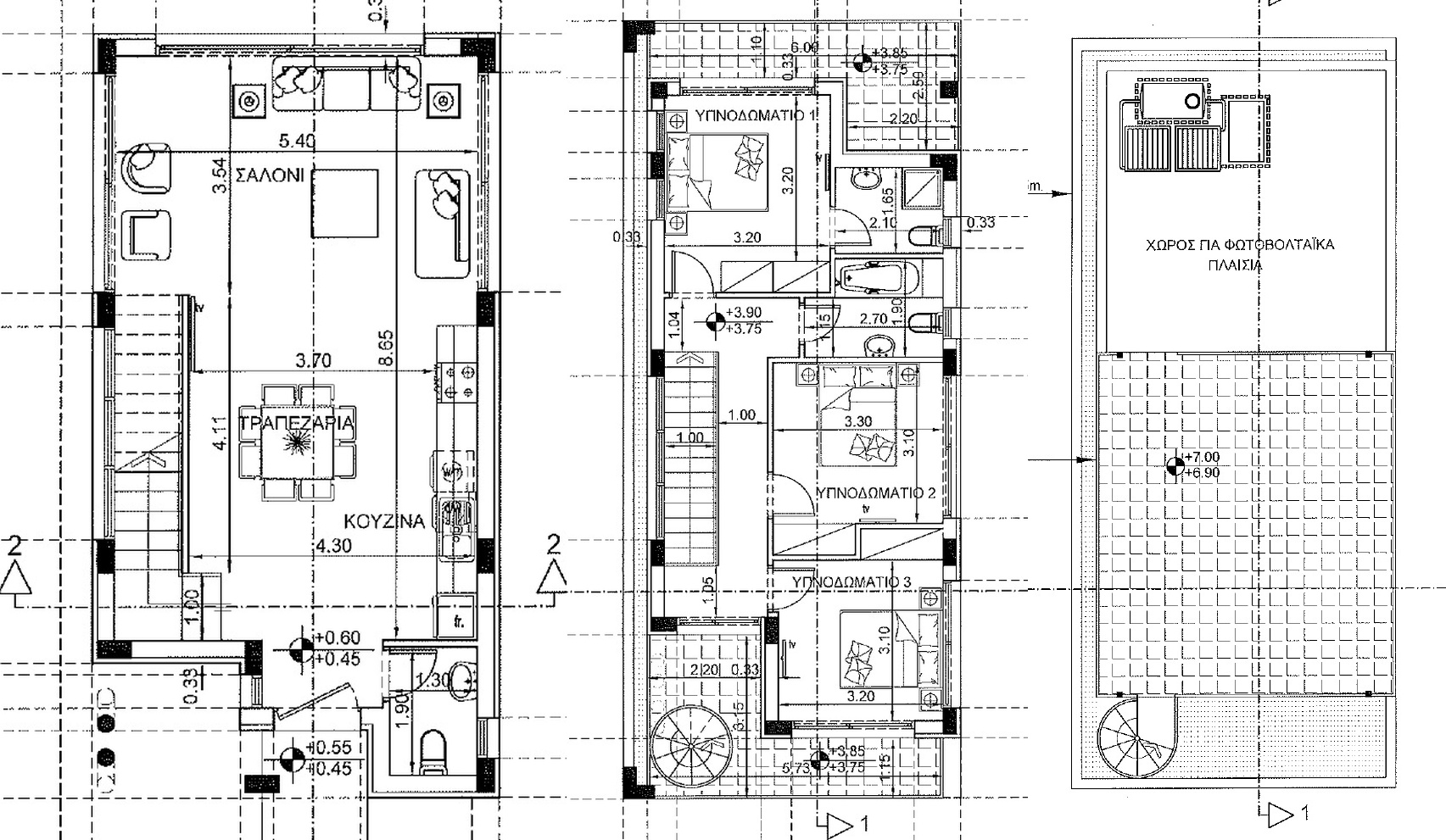
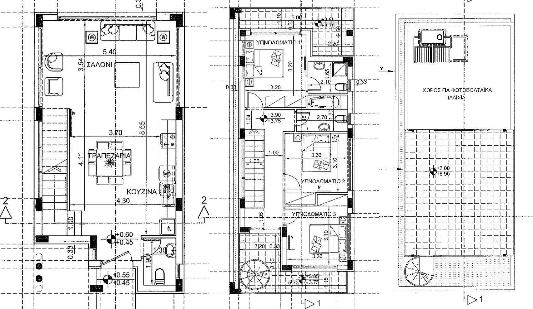
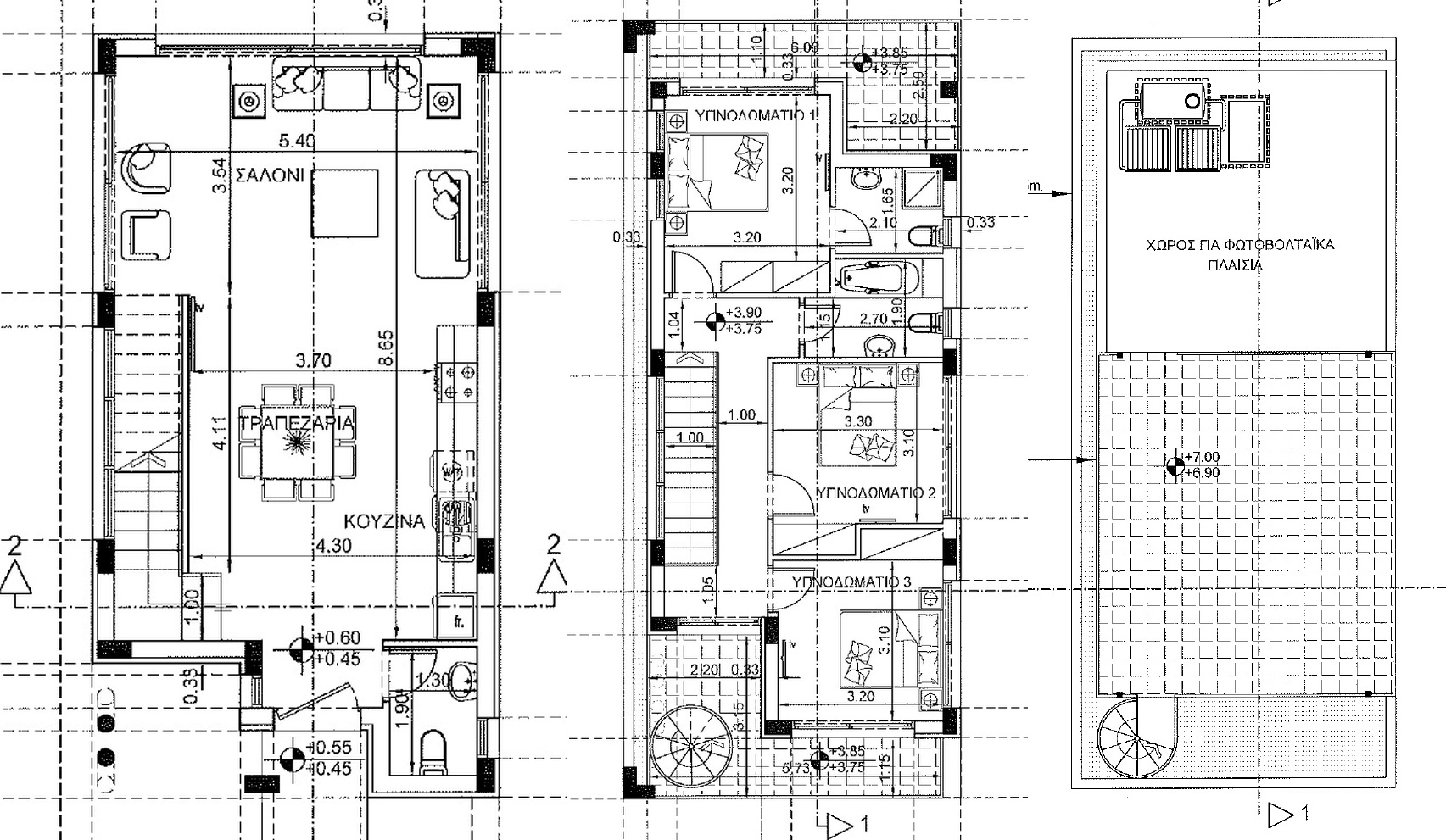
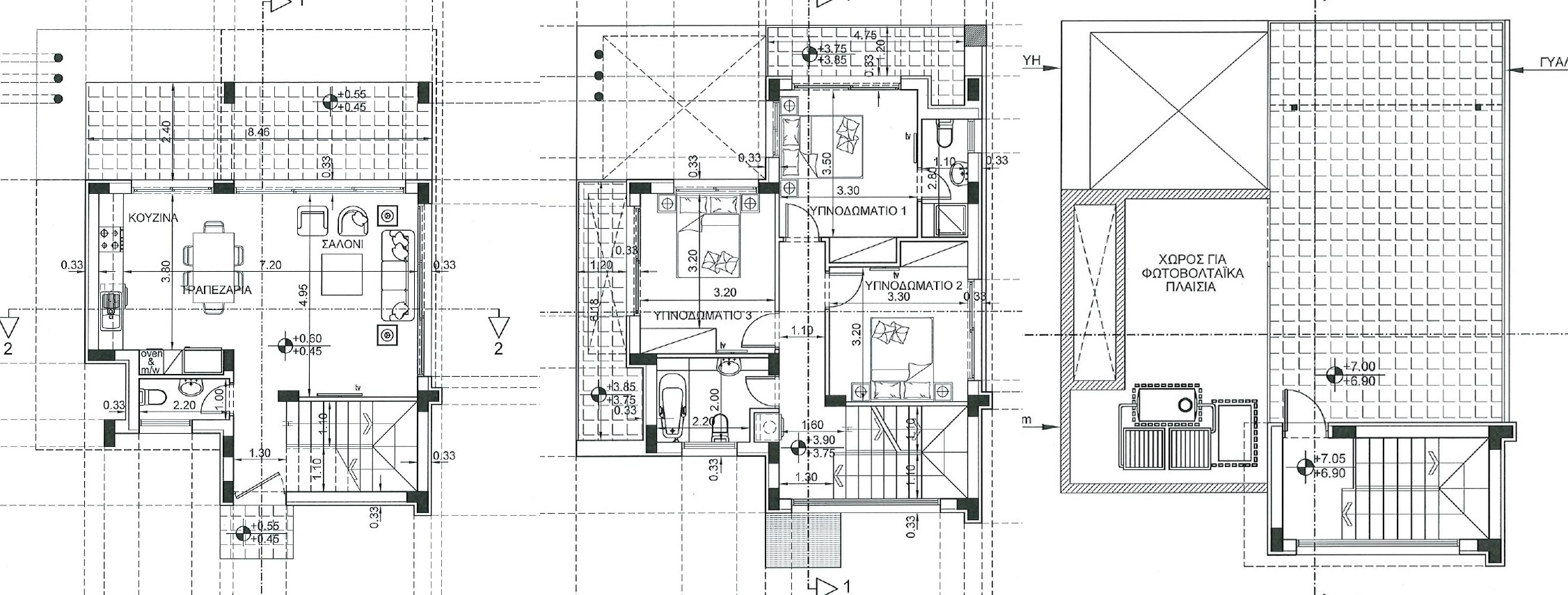
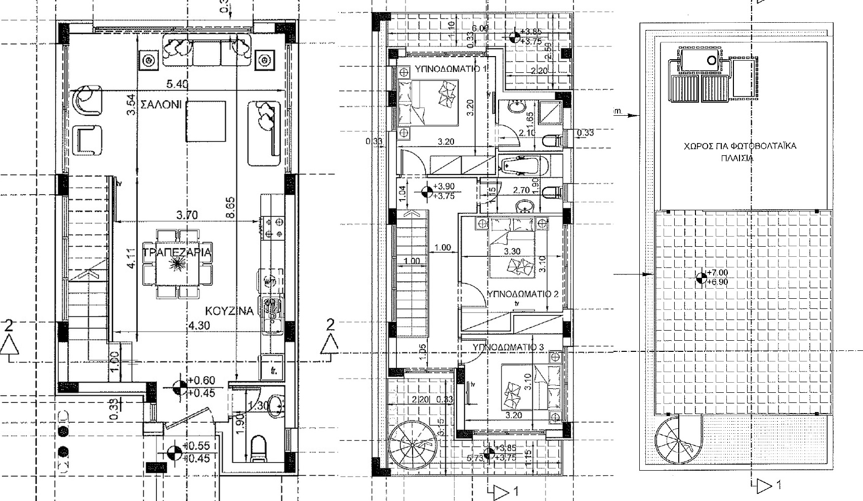
Схема
Лоты
Внутренняя площадь
Открытая веранда
Крытая веранда
Площадь участка
Спален
Санузлов
Стоимость
section-lots lot photo
Вилла 4A
Внутренняя площадь
132 м2
Открытая веранда
32 м2
Крытая веранда
16 м2
Площадь участка
295 м2
Спален
3
Санузлов
3
€635 000
Скачать PDF
section-lots lot photo
Вилла 5A
Внутренняя площадь
132 м2
Открытая веранда
32 м2
Крытая веранда
16 м2
Площадь участка
294 м2
Спален
3
Санузлов
3
€635 000
Скачать PDF
section-lots lot photo
Зарезервировано
Вилла 6A
Внутренняя площадь
132 м2
Открытая веранда
32 м2
Крытая веранда
16 м2
Площадь участка
290 м2
Спален
3
Санузлов
3
По запросу
Скачать PDF
section-lots lot photo
Вилла 7A
Внутренняя площадь
132 м2
Открытая веранда
32 м2
Крытая веранда
16 м2
Площадь участка
274 м2
Спален
3
Санузлов
3
Продано
Скачать PDF
section-lots lot photo
Вилла 8A
Внутренняя площадь
132 м2
Открытая веранда
32 м2
Крытая веранда
16 м2
Площадь участка
292 м2
Спален
3
Санузлов
3
€635 000
Скачать PDF
section-lots lot photo
Вилла 9A
Внутренняя площадь
132 м2
Открытая веранда
32 м2
Крытая веранда
16 м2
Площадь участка
291 м2
Спален
3
Санузлов
3
€635 000
Скачать PDF
section-lots lot photo
Вилла 10C
Внутренняя площадь
130 м2
Открытая веранда
30 м2
Крытая веранда
22 м2
Площадь участка
312 м2
Спален
3
Санузлов
3
€635 000
Скачать PDF
section-lots lot photo
Зарезервировано
Вилла 12C
Внутренняя площадь
130 м2
Открытая веранда
30 м2
Крытая веранда
22 м2
Площадь участка
295 м2
Спален
3
Санузлов
3
По запросу
Скачать PDF
section-lots lot photo
Вилла 13A
Внутренняя площадь
132 м2
Открытая веранда
32 м2
Крытая веранда
16 м2
Площадь участка
279 м2
Спален
3
Санузлов
3
€625 000
Скачать PDF
section-lots lot photo
Вилла 15C
Внутренняя площадь
130 м2
Открытая веранда
30 м2
Крытая веранда
22 м2
Площадь участка
277 м2
Спален
3
Санузлов
3
€625 000
Скачать PDF
section-lots lot photo
Вилла 16A
Внутренняя площадь
132 м2
Открытая веранда
32 м2
Крытая веранда
16 м2
Площадь участка
278 м2
Спален
3
Санузлов
3
€625 000
Скачать PDF
section-lots lot photo
Вилла 17A
Внутренняя площадь
132 м2
Открытая веранда
32 м2
Крытая веранда
16 м2
Площадь участка
270 м2
Спален
3
Санузлов
3
€625 000
Скачать PDF
section-lots lot photo
Вилла 18A
Внутренняя площадь
132 м2
Открытая веранда
32 м2
Крытая веранда
16 м2
Площадь участка
275 м2
Спален
3
Санузлов
3
€625 000
Скачать PDF
section-lots lot photo
Вилла 19A
Внутренняя площадь
130 м2
Открытая веранда
30 м2
Крытая веранда
22 м2
Площадь участка
275 м2
Спален
3
Санузлов
3
€625 000
Скачать PDF
section-lots lot photo
Вилла 23A
Внутренняя площадь
132 м2
Открытая веранда
32 м2
Крытая веранда
16 м2
Площадь участка
273 м2
Спален
3
Санузлов
3
€625 000
Скачать PDF
section-lots lot photo
Вилла 24A
Внутренняя площадь
132 м2
Открытая веранда
32 м2
Крытая веранда
16 м2
Площадь участка
273 м2
Спален
3
Санузлов
3
€625 000
Скачать PDF
section-lots lot photo
Вилла 25A
Внутренняя площадь
132 м2
Открытая веранда
32 м2
Крытая веранда
16 м2
Площадь участка
287 м2
Спален
3
Санузлов
3
€625 000
Скачать PDF
section-lots lot photo
Вилла 26A
Внутренняя площадь
132 м2
Открытая веранда
32 м2
Крытая веранда
16 м2
Площадь участка
287 м2
Спален
3
Санузлов
3
€625 000
Скачать PDF
section-lots lot photo
Вилла 27A
Внутренняя площадь
132 м2
Открытая веранда
32 м2
Крытая веранда
16 м2
Площадь участка
287 м2
Спален
3
Санузлов
3
€625 000
Скачать PDF
section-lots lot photo
Вилла 28A
Внутренняя площадь
132 м2
Открытая веранда
32 м2
Крытая веранда
16 м2
Площадь участка
291 м2
Спален
3
Санузлов
3
€635 000
Скачать PDF

Инфраструктура
Смотреть на карте

Узнайте больше об этом проекте

Узнайте больше об этом проекте

Часто задаваемые вопросы

Возможно ли сейчас получить ВНЖ на Кипре?

Да – по состоянию на середину 2023 года и вид на жительство, и постоянный вид на жительство власти Кипра выдают. Причем запретов по национальному признаку нет, и, например, граждане РФ тоже успешно становятся резидентами страны. Способов получить вид на жительство более десяти. Это, например, студенческая виза, ВНЖ для финансово-независимых лиц, цифровых кочевников, вид на жительство на основании трудоустройства, инвестиционный Fast Track… Безусловно, еще со времен пандемии многие согласовательные процедуры проходят дольше обычного, но никаких ограничений власти страны не вводили. Но в процессе есть множество нюансов, поэтому каждый случай требует отдельного рассмотрения.

Можно ли сейчас открыть счет в банке Кипра?

Иностранные граждане по-прежнему могут открыть счёт в кипрском банке. Трудности есть только у граждан РФ и Беларуси. Скорее всего, если просто придти с улицы, счёт им - в 2023 году - не откроют. И, важно, чтобы «источник происхождения средств» не был связан с санкционной деятельностью. По практике, список доходов, считающихся "санкционными", в последнее время расширяется. Исключением, например, является доход, получаемый от аренды недвижимости. Кстати, при покупке недвижимости уже на Кипре наличие собственного счета не обязательно. А вот уже приобретя ее, а тем более, получив ПМЖ, открыть счёт могут и россияне, и белорусы. Однако, надо быть готовым к тому, что проверки (в том числе происхождения средств) со стороны банков ужесточились, хотя и не особо удлинилась – процесс занимает, как и раньше, около 2 недель.

Как выглядит процедура покупки на Кипре

Основные этапы можно описать так: проверка покупателя - в том числе через банк. Это важнейший, необходимый в настоящее время этап, позволяющий оценить, сможете ли вы реально совершить сделку. Далее подбор недвижимости (очный или заочный) и параллельный сбор документов для банка. В последующем резервация с внесением предоплаты. Далее заключение договора (с описанием условий оплаты), оплата недвижимости и регистрация прав собственности, получение подтверждающих документов. В зависимости от деталей конкретной сделки процедуры на разных этапах возможны дополнительные проверки и подготовка документов.

Почему выгодно покупать недвижимость через агентство, а не самостоятельно?

Сразу заметим, что смысл имеет обращение (и общение) с надежной и профессиональной компанией - с историей и положительными отзывами. Во-первых, вы привлекаете в помощники специалистов, разбирающихся в рынке, ценах, предложениях, процедуре сделки. Они помогут решить задачи в незнакомой стране, со своей спецификой. Во-вторых, вы можете найти компанию, где говорят на вашем языке. Вам помогут организовать просмотры, собрать документы, согласовать сроки и организовать необходимые встречи и процедуры. В-третьих, во многих случаях вы можете рассчитывать на снижение цены за конкретный объект - у серьезных агентств обычно есть «особые условия» при работе с застройщиками. На гигантские скидки надеяться не стоит, но и переплачивать вы точно не будете. Наконец, в хорошем агентстве вам помогут решить вопросы, напрямую не связанные с покупкой. Обучение детей, обустройство на новом месте, поиск мастера или специалиста любого профиля - нужды могут быть самые разные.

Какие преимущества даёт налоговое резидентство Кипра

Кипр не является оффшором, но предлагает выгодные налоговые условия для тех, кто становится налоговым резидентом страны. Им можно стать, проживая на Кипре более 183 дней в году или – если вы проживаете на Кипре не менее 60 дней в налоговом году; не живете в другой стране более 183 дней в течение налогового года; не являетесь налоговым резидентом другой страны; имеете на Кипре жилье – в собственности или арендуемое . В этом случае для вас может быть установлено декларируемое налоговое резидентство Non-Domicile. Его обладатель не платит специальный SDC - «взнос на оборону». По факту не облагаются налогом: доходы от дивидендов, все процентные доходы по вкладам, доход от аренды недвижимости (за исключением подоходного налога). Вы также не платите налог на доходы за пределами Кипра, налог от продажи ценных бумаг, налоги на наследство, подарки и роскошь. Это только часть преимуществ. Для получения более подробной информации рекомендуем связаться с нами напрямую.

Можно ли купить недвижимость на Кипре дистанционно?

Да, такие сделки практикуются, особенно при покупке недвижимости на ранней стадии строительства или даже до его начала, когда нет возможности посмотреть готовый объект. Например, наша компания для упрощения процедуры проводит онлайн-туры, показывая и возможные варианты, и районы – а также отвечая на все возникающие вопросы и сомнения. Ключевой момент в такой схеме – найти доверенное лицо или компанию, которая будет представлять ваши интересы – а затем подготовить, подписать и апостилировать нотариальную доверенность не его/ее имя.

Не знаете с чего начать? Подскажем!
Оставьте заявку и наш специалист свяжется с вами, чтобы помочь с подбором недвижимости
+357-96-666-506
Я даю согласие на обработку своих персональных данных