EN
+357-96-666-506
Ежедневно с 9:00 до 18:30

Гармоничная 2-х комнатная квартира в Germasogeia View (101)

Кипр, Лимассол, Гермасоя
Показать на карте
section hero slider slide background
section hero slider slide background
section hero slider slide background
section hero slider slide background
section hero slider slide background
section hero slider slide background
section hero slider slide background
€350 000
Назначение
Продажа
Город
Лимассол
Район
Гермасоя
Тип объекта
Строится
Площадь
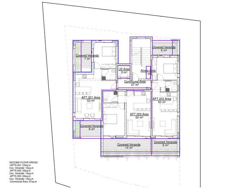
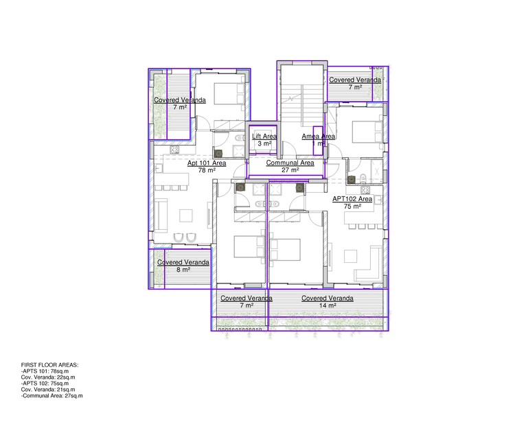
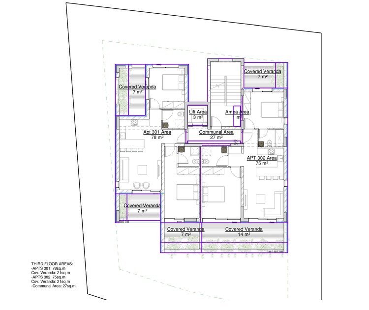
78 м2
Спален
2
С/У
2
Скачать предложение
Характеристики
feature icon
Жилая площадь
78 м2
feature icon
Спален
2
feature icon
Тип объекта
Строится
feature icon
Тип недвижимости
Жилая недвижимость
feature icon
Год строительства
2026
feature icon
Титул собственности
нет
feature icon
Статус
не готов к заселению
feature icon
Вид
Город

Эта трехэтажная недвижимость может похвастаться семь квартир, из которых три спальни, а четыре-2 спальни, все с большой верандой. Эти роскошные квартиры на продажу в Лимассоле пользуются панорамным видом на город и средиземноморский. Расположен в популярной области Гермасогеи, эта современная разработка находится всего в 10 минутах езды на центр Лимассола, с легким доступом к шоссе и всего в 3,5 км от моря. Всего 3,5 км далеко от моря.

Роскошная 2-спальная квартира
До моря 3500 м.
Закрытый комплекс
Высокие потолки
Жилая площадь 78 кв.м.
Крытые веранды 22 кв.м.
Открытого плана гостиная
2 Спальни
Спальня с ванной
Семейная ванная комната
Солнечные панели для нагрева воды
Кондиционеры
Система напора воды
Двойной стеклопакет
Теплый пол
Апартаменты меблированные
Лифт
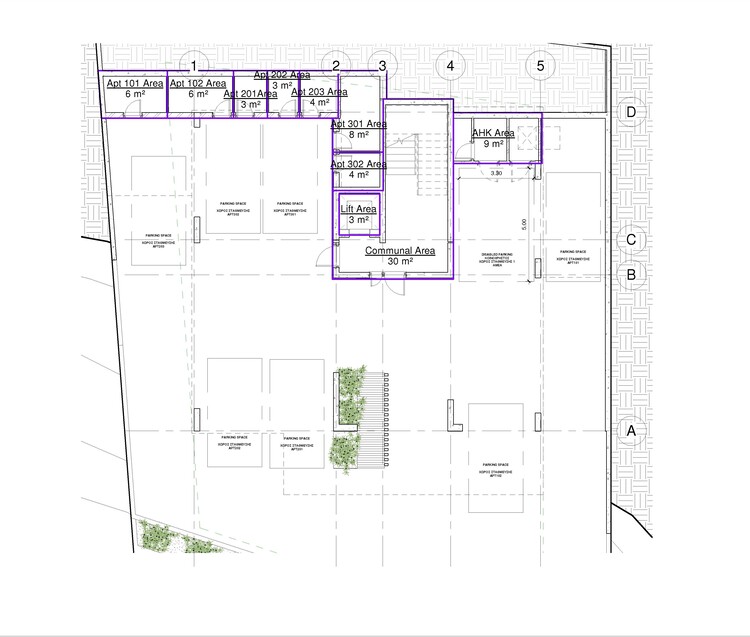
Крытая парковка
Ориентировочная дата сдачи проекта 2026
Цена 350000 + НДС

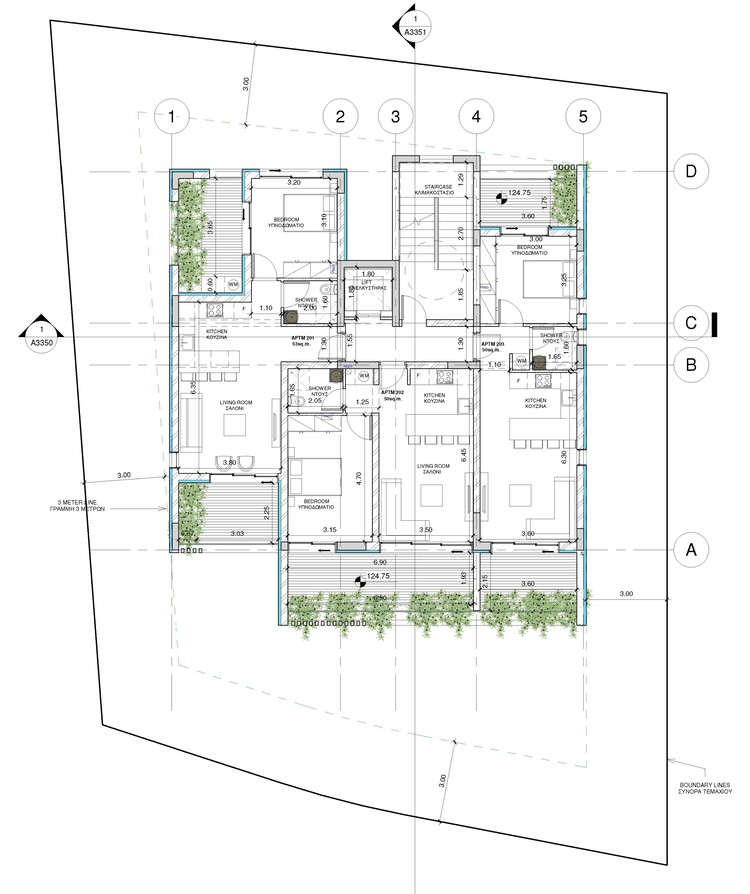
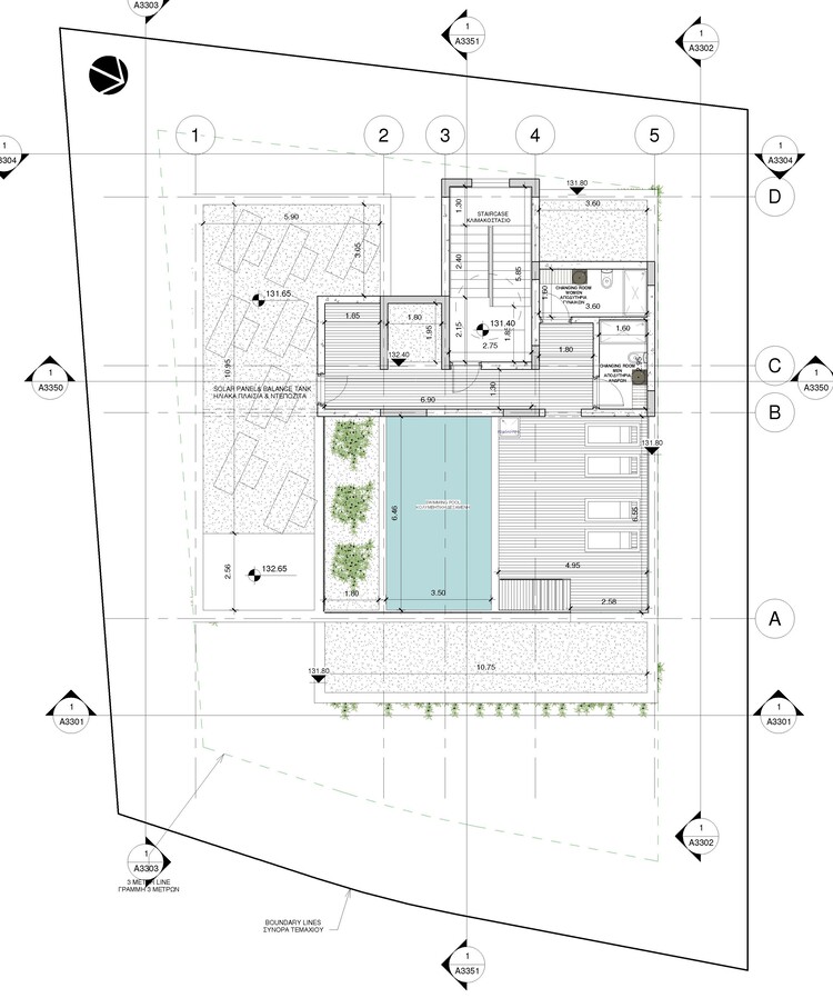
Планировка

section planning slider slide background
section planning slider slide background
section planning slider slide background
section planning slider slide background
section planning slider slide background
section planning slider slide background
section planning slider slide background
section planning slider slide background
section planning slider slide background
section planning slider slide background
section planning slider slide background
section planning slider slide background
section planning slider slide background
section planning slider slide background
section planning slider slide background
section planning slider slide background
section planning slider slide background
section planning slider slide background
section planning slider slide background
section planning slider slide background
section planning slider slide background
section planning slider slide background

Инфраструктура
Смотреть на карте

Узнайте больше об этом объекте

Узнайте больше об этом объекте

Похожие объекты

Часто задаваемые вопросы

Возможно ли сейчас получить ВНЖ на Кипре?

Да – по состоянию на середину 2023 года и вид на жительство, и постоянный вид на жительство власти Кипра выдают. Причем запретов по национальному признаку нет, и, например, граждане РФ тоже успешно становятся резидентами страны. Способов получить вид на жительство более десяти. Это, например, студенческая виза, ВНЖ для финансово-независимых лиц, цифровых кочевников, вид на жительство на основании трудоустройства, инвестиционный Fast Track… Безусловно, еще со времен пандемии многие согласовательные процедуры проходят дольше обычного, но никаких ограничений власти страны не вводили. Но в процессе есть множество нюансов, поэтому каждый случай требует отдельного рассмотрения.

Можно ли сейчас открыть счет в банке Кипра?

Иностранные граждане по-прежнему могут открыть счёт в кипрском банке. Трудности есть только у граждан РФ и Беларуси. Скорее всего, если просто придти с улицы, счёт им - в 2023 году - не откроют. И, важно, чтобы «источник происхождения средств» не был связан с санкционной деятельностью. По практике, список доходов, считающихся "санкционными", в последнее время расширяется. Исключением, например, является доход, получаемый от аренды недвижимости. Кстати, при покупке недвижимости уже на Кипре наличие собственного счета не обязательно. А вот уже приобретя ее, а тем более, получив ПМЖ, открыть счёт могут и россияне, и белорусы. Однако, надо быть готовым к тому, что проверки (в том числе происхождения средств) со стороны банков ужесточились, хотя и не особо удлинилась – процесс занимает, как и раньше, около 2 недель.

Как выглядит процедура покупки на Кипре

Основные этапы можно описать так: проверка покупателя - в том числе через банк. Это важнейший, необходимый в настоящее время этап, позволяющий оценить, сможете ли вы реально совершить сделку. Далее подбор недвижимости (очный или заочный) и параллельный сбор документов для банка. В последующем резервация с внесением предоплаты. Далее заключение договора (с описанием условий оплаты), оплата недвижимости и регистрация прав собственности, получение подтверждающих документов. В зависимости от деталей конкретной сделки процедуры на разных этапах возможны дополнительные проверки и подготовка документов.

Почему выгодно покупать недвижимость через агентство, а не самостоятельно?

Сразу заметим, что смысл имеет обращение (и общение) с надежной и профессиональной компанией - с историей и положительными отзывами. Во-первых, вы привлекаете в помощники специалистов, разбирающихся в рынке, ценах, предложениях, процедуре сделки. Они помогут решить задачи в незнакомой стране, со своей спецификой. Во-вторых, вы можете найти компанию, где говорят на вашем языке. Вам помогут организовать просмотры, собрать документы, согласовать сроки и организовать необходимые встречи и процедуры. В-третьих, во многих случаях вы можете рассчитывать на снижение цены за конкретный объект - у серьезных агентств обычно есть «особые условия» при работе с застройщиками. На гигантские скидки надеяться не стоит, но и переплачивать вы точно не будете. Наконец, в хорошем агентстве вам помогут решить вопросы, напрямую не связанные с покупкой. Обучение детей, обустройство на новом месте, поиск мастера или специалиста любого профиля - нужды могут быть самые разные.

Какие преимущества даёт налоговое резидентство Кипра

Кипр не является оффшором, но предлагает выгодные налоговые условия для тех, кто становится налоговым резидентом страны. Им можно стать, проживая на Кипре более 183 дней в году или – если вы проживаете на Кипре не менее 60 дней в налоговом году; не живете в другой стране более 183 дней в течение налогового года; не являетесь налоговым резидентом другой страны; имеете на Кипре жилье – в собственности или арендуемое . В этом случае для вас может быть установлено декларируемое налоговое резидентство Non-Domicile. Его обладатель не платит специальный SDC - «взнос на оборону». По факту не облагаются налогом: доходы от дивидендов, все процентные доходы по вкладам, доход от аренды недвижимости (за исключением подоходного налога). Вы также не платите налог на доходы за пределами Кипра, налог от продажи ценных бумаг, налоги на наследство, подарки и роскошь. Это только часть преимуществ. Для получения более подробной информации рекомендуем связаться с нами напрямую.

Можно ли купить недвижимость на Кипре дистанционно?

Да, такие сделки практикуются, особенно при покупке недвижимости на ранней стадии строительства или даже до его начала, когда нет возможности посмотреть готовый объект. Например, наша компания для упрощения процедуры проводит онлайн-туры, показывая и возможные варианты, и районы – а также отвечая на все возникающие вопросы и сомнения. Ключевой момент в такой схеме – найти доверенное лицо или компанию, которая будет представлять ваши интересы – а затем подготовить, подписать и апостилировать нотариальную доверенность не его/ее имя.

Не знаете с чего начать? Подскажем!
Оставьте заявку и наш специалист свяжется с вами, чтобы помочь с подбором недвижимости
+357-96-666-506
Я даю согласие на обработку своих персональных данных