RU
+357-96-666-506
Daily from 9:00 to 18:30

Beautiful 1-room apartment in Germasogeia View (203)

Cyprus, Limassol, Yermasoyia
Show on map
section hero slider slide background
section hero slider slide background
section hero slider slide background
section hero slider slide background
section hero slider slide background
section hero slider slide background
section hero slider slide background
€250 000
Purpose
Sell
City
Limassol
District
Yermasoyia
Object type
Under construction
Area
50 m2
Bedrooms
1
WCs
1
Download Proposal
Features
feature icon
Living area
50 m2
feature icon
Bedrooms
1
feature icon
Object type
Under construction
feature icon
Property type
Residential properties
feature icon
Year of construction
2026
feature icon
Title Deed
no
feature icon
Status
not ready to move in
feature icon
View
city

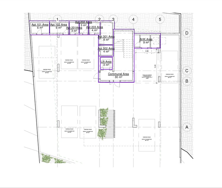
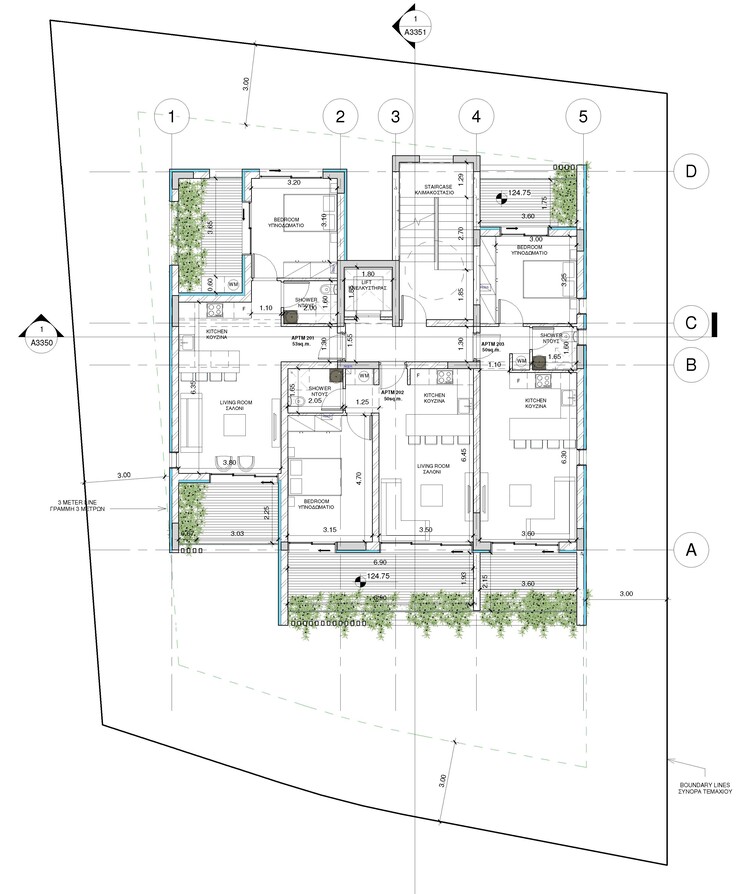
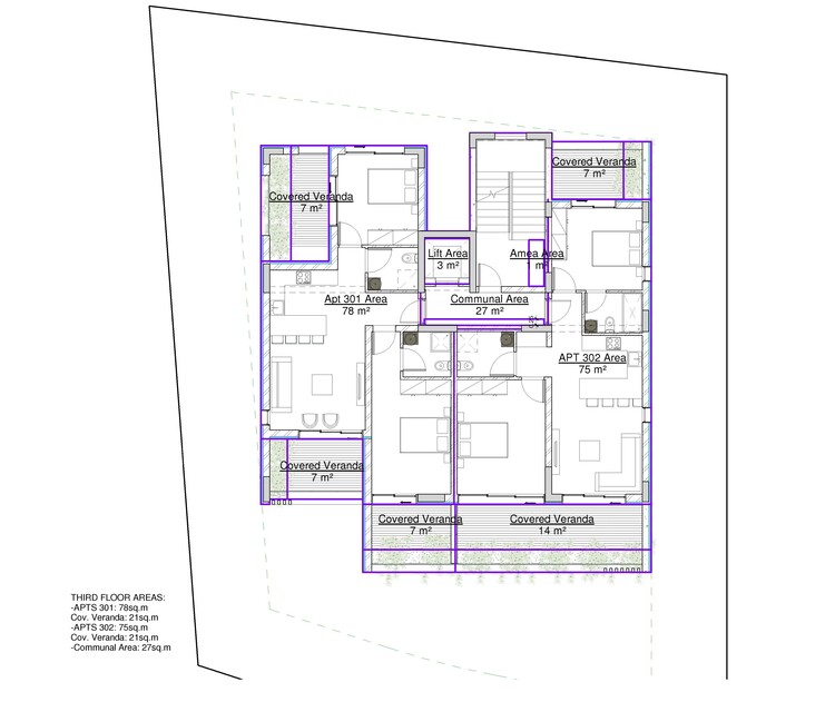
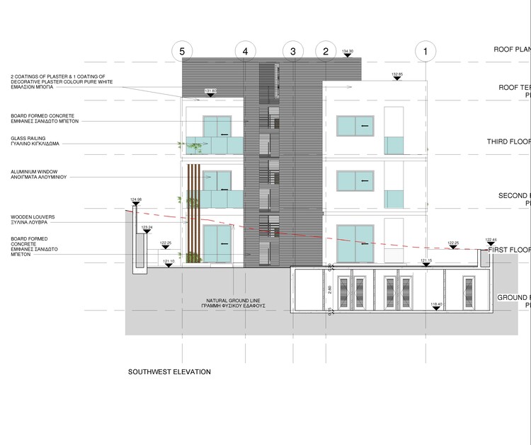
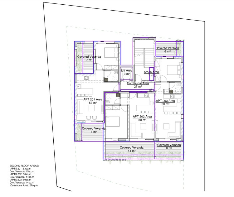
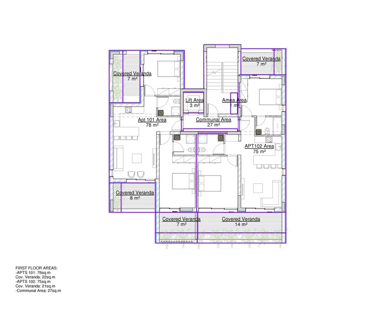
This 3-storey property boasts seven apartments of which three are 1 bedroom and four are 2 bedrooms, all with a large veranda. These luxury apartments for sale in Limassol enjoy panoramic views of both the City and the Mediterranean. Located in the popular area of Germasogeia, this modern development is only 10 minutes’ drive the centre of Limassol, with easy access to the highway and only 3.5km from the sea.s’ drive of the center, within easy access to the highway and only 3.5km far away from the sea.

Luxury 1-bedroom apartment
To the sea 3500 m.
Gated complex
High ceilings
Living area 50 sq.m.
Indoor verandas 14 sq.m.
Open plan living room
1 bedrooms
Bedroom ensuite
A family bathroom
Solar panels for water heating
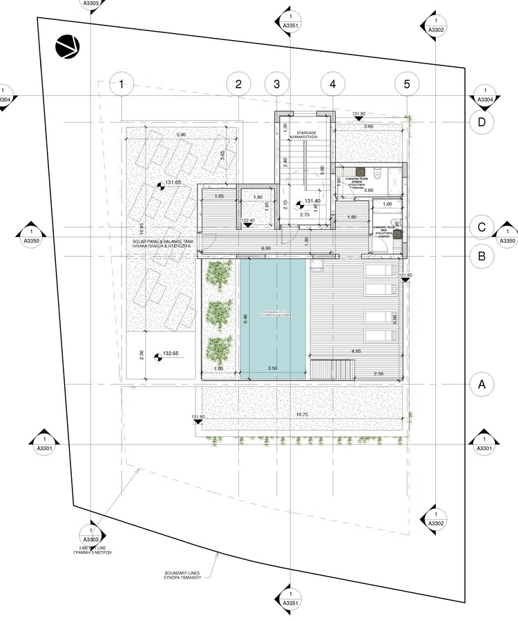
Swimming pool
Air conditioners
Water Pressure System
Double Glazing windows
Underfloor heating
Apartments furnished
Elevator
Covered Parking
Estimated delivery date 2026
Price 250000 + VAT

Layout

section planning slider slide background
section planning slider slide background
section planning slider slide background
section planning slider slide background
section planning slider slide background
section planning slider slide background
section planning slider slide background
section planning slider slide background
section planning slider slide background
section planning slider slide background
section planning slider slide background
section planning slider slide background
section planning slider slide background
section planning slider slide background
section planning slider slide background
section planning slider slide background
section planning slider slide background
section planning slider slide background
section planning slider slide background
section planning slider slide background
section planning slider slide background
section planning slider slide background

Infrastructure
Look at the map

Learn more about this property

Learn more about this property

Similar objects

Frequently Asked Questions

Is it possible to get a residence permit in Cyprus now?

Yes - as at mid-2023, both a residence permit and a permanent residence permit are issued by the Cypriot authorities. Moreover, there are no prohibitions based on nationality and, for example, citizens of the Russian Federation also successfully become residents of the country. There are more than ten ways to get a residence permit. This is , for example, a student visa, a residence permit for financially independent persons, digital nomads, a residence permit based on employment, an investment Fast Track ... Of course, since the pandemic, many coordination procedures have taken longer than usual, but the country's authorities have not imposed any restrictions. But there are many nuances in the process, so each case requires individual consideration.

Is it possible to open a bank account in Cyprus now?

Foreign citizens can still open a Cypriot bank account. Only citizens of the Russian Federation and Belarus have difficulties. Most likely if you just come from the street in 2023, they will not open an account for you. And it is important that the “source of funds” is not associated with sanctioned activities. In practice, the list of incomes considered "sanctioned" has recently been expanding. An exception, for example, is the income received from the rental of real estate. By the way, it is not necessary to have your own bank account to buy a property if you are in Cyprus. But having already purchased it, and furthermore, having received permanent residence, both Russians and Belarusians can open an account. However, one must be prepared for the fact that checks (including the origin of funds) by banks have become tougher, although not particularly lengthened - the process takes, as before, about 2 weeks.

What the purchase procedure in Cyprus looks like

The main steps are as follows: verification of the buyer - including a banking verification. This is the most important, now necessary step, allowing to assess whether you can actually make a deal selection of a property (on-site or remote) and simultaneous submission of documents to the bank prepaid reservation conclusion of an agreement (with a description of the terms of payment) payment for the property registration of property rights, receipt of supporting documents. Depending on the details of a specific transaction, additional checks and preparation of documents are possible at different steps of the procedure.

Why is it profitable to buy real estate through an agency and not on your own?

Just note that it makes sense to contact (and communicate) with a reliable and professional company - with a history and positive reviews. Firstly, you involve specialists who understand the market, prices, offers, and the transaction procedure as assistants. They will help solve problems in an unfamiliar country with its own specifics. Second, you can find a company that speaks your language. You will be helped to organize viewings, collect documents, agree on deadlines and arrange necessary meetings and procedures. Thirdly, in many cases you can expect the price to come even down for a particular object - serious agencies usually have "special conditions" when dealing with developers. You should not hope for huge discounts, but you definitely won’t overpay. Finally, a good agency will help you resolve issues that are not directly related to the purchase. Teaching children, settling in a new place, searching for a master or a specialist of any profile - the needs can be very different.

What advantages does tax residency in Cyprus offer?

Cyprus is not an offshore jurisdiction, but it offers favorable tax conditions for those who become tax residents of the country. You can become a tax resident by residing in Cyprus for more than 183 days a year or if you: - Reside in Cyprus for at least 60 days in a tax year. - Do not live in another country for more than 183 days during the tax year. - Are not a tax resident of another country. - Have property in Cyprus, either owned or rented. In this case, you may qualify for Non-Domicile tax residency, where you are exempt from paying the Special Defense Contribution (SDC). The following are not subject to taxation: - Dividend income. - Interest income from deposits. - Rental income from real estate (except for income tax). You also do not pay tax on income outside of Cyprus, securities sales tax, inheritance taxes, gifts, and luxury taxes. These are just some of the advantages. For more detailed information, we recommend contacting us directly.

Is it possible to buy property in Cyprus remotely?

Yes, such transactions are practiced, especially when purchasing property at an early stage of construction or even before it begins when there is no opportunity to see the finished property. For example, our company facilitates the process by conducting online tours, showcasing potential options and areas, as well as addressing any questions and concerns that arise. The key aspect of this scheme is to find a trusted individual or company that will represent your interests, and then prepare, sign, and apostille a notarized power of attorney in their name.

Don't know where to start? We'll give you a hint!
Leave a request and our specialist will contact you to discuss all the details of the deal.
+357-96-666-506
I consent to the processing of my personal data